Accurate floor plans are the backbone of any design, construction, or renovation project. Whether you’re an architect, builder, real estate professional, or property owner, having precise measurements and layouts saves time, reduces errors, and streamlines the entire process. Today, 3D laser scanning has revolutionised the way floor plans are created—delivering speed, accuracy, and detail that traditional methods simply can’t match.
What Is 3D Scanning?
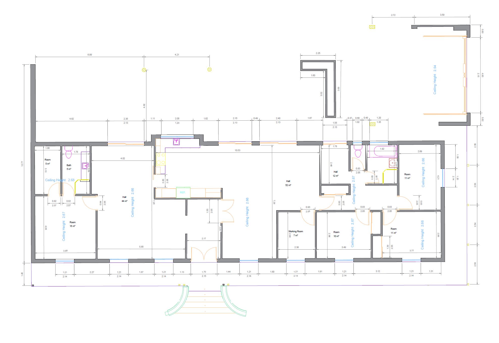
3D laser scanning uses advanced laser technology to capture millions of data points from a building or space in a matter of minutes. These points form a point cloud—a highly accurate digital representation of the environment. From this data, we can generate detailed 2D floor plans and 3D models with exact dimensions.
Why Choose 3D Laser Scanning for Floor Plans?
1. Architecture and Design
Architects use 3D laser scanners to create precise floor plans for new constructions, renovations, and restorations. The technology helps them visualize the space better and make informed design decisions.
2. Construction
Contractors rely on accurate floor plans for planning and executing construction projects. 3D laser scanning ensures that the plans are precise and reduce the likelihood of costly mistakes.
3. Real Estate
Real estate professionals use 3D laser scanning to create detailed and visually appealing floor plans for property listings. These plans help potential buyers understand the layout and dimensions of a property.
4. Facility Management
Facility managers use 3D laser scanning to update and maintain accurate records of a building’s layout. This is particularly useful for planning renovations or ensuring compliance with safety regulations.
How to Get Started with 3D Laser Scanning for Floor Plans
- Choose the Right Scanner: Select a 3D laser scanner that suits your needs and budget. Popular options include handheld, tripod-mounted, and drone-mounted scanners.
- Learn the Basics: Familiarize yourself with the operation of the scanner and the software used to process the data.
- Plan Your Scans: Before scanning, plan your approach to ensure that you capture all necessary data. Consider the layout, lighting conditions, and any obstacles that might affect the scan.
- Process the Data: Use specialized software to convert the point cloud data into 2D floor plans or 3D models. Many software solutions offer user-friendly interfaces and advanced features to simplify this process.
- Integrate with Other Tools: Export your floor plans into CAD or BIM software for further design and analysis.
Conclusion
3D laser scanning technology is revolutionizing the way we create floor plans, offering unparalleled accuracy, efficiency, and flexibility. By adopting this technology, professionals across various industries can streamline their workflows, reduce errors, and deliver exceptional results. Whether you’re designing a new building, renovating an old one, or showcasing a property, 3D laser scanning is the ultimate tool for creating precise and detailed floor plans.







